Krbová kamna VICTORIA Brita
Kód: 21236Související produkty
Detailní popis produktu
Krbová kamna VICTORIA, oboustranně prosklená, 11 kW (Ekodesign)
Oboustranně prosklená krbová kamna VICTORIA jsou ideálním řešením pro oddělení dvou místností nebo pro umístění do středu prostoru, kde chcete z obou stran vidět na oheň. Korpus z ocelového plechu o síle 3–4 mm, šamotová vyzdívka topeniště a litinový rošt zajišťují odolnost při každodenním topení a rovnoměrné sálavé teplo.
Nominální výkon 11 kW, účinnost 76,87 %, spotřeba paliva přibližně 3,15 kg dřeva/hod, kouřovod 150 mm (horní vývod), palivo dřevo / dřevěné brikety. Kamna splňují požadavky Ekodesign a hodí se jako silný doplňkový nebo hlavní zdroj tepla podle tepelné ztráty objektu.
pro vytápění cca 150–220 m³*
ideální mezi dvě místnosti
vyšší teplota hoření a akumulace
kouřovod 150 mm, horní vývod
* Orientační hodnota – skutečná potřeba výkonu se vždy řídí tepelnou ztrátou domu, zateplením, typem oken a dispozicí místností.

Proč zvolit oboustranně prosklená kamna VICTORIA (11 kW)
Prosklená dvířka z obou stran
Dvojité prosklení (přední i zadní dvířka) umožňuje sledovat plameny ze dvou místností nebo z různých stran jedné místnosti. Kamna se skvěle hodí jako „průchozí“ prvek mezi obývákem a jídelnou nebo jako středový prvek v otevřeném prostoru.
Ocelový korpus, šamot a litinový rošt
Korpus je vyroben z ocelového plechu o síle 3–4 mm, topeniště je vyložené šamotovými cihlami a na dně je odolný litinový rošt. Šamot pomáhá udržet vysokou teplotu hoření, chrání plášť kamen a částečně akumuluje teplo.
Čistší sklo díky sekundárnímu vzduchu
Sekundární vzduchová klapka přivádí vzduch do horní části topeniště, kde podporuje dohoření plynů, zvyšuje účinnost a zároveň vytváří oplach skla. Díky tomu zůstává sklo déle čisté a vy si užijete krásný pohled do ohně z obou stran.
Výkon 11 kW a praktický dřevník
Nominální výkon 11 kW je vhodný pro vytápění větších místností nebo částečně otevřených prostor. Spodní prostor pro dřevo slouží jako praktický dřevník – polena máte vždy po ruce a v suchu přímo u kamen.
Jak budou tato kamna fungovat ve vašem domě
V prostorném topeništi o rozměrech 528 × 338 × 445 mm hoří kusové dřevo nebo dřevěné brikety. Teplo se předává do šamotu a ocelového pláště a do místnosti se šíří sáláním i konvekcí. Oboustranné prosklení rozptyluje světlo plamenů na obě strany, takže kamna působí jako centrální designový prvek.
Primární vzduch regulujete pomocí přední klapky, sekundární vzduch je přiváděn nad plamen a zajišťuje čistší spalování a oplach skla. Při správném nastavení klapek a použití suchého paliva dosáhnete vyšší účinnosti, nižší spotřeby a menšího zanášení komína.
V dobře zatepleném domě mohou kamna sloužit jako silný doplňkový zdroj tepla, v menších nebo středně velkých objektech (podle tepelné ztráty) i jako hlavní zdroj vytápění jedné či více místností.
Pro koho jsou oboustranně prosklená krbová kamna VICTORIA ideální
- Pro rodinné domy, kde chcete vytápět větší obývací prostor nebo dvě navazující místnosti.
- Pro otevřené dispozice (obývák + jídelna, mezonet, galerie), kde kamna stojí spíše ve středu místnosti.
- Pro chalupy a rekreační objekty, kde je důležitá atmosféra ohně z více stran.
- Pro uživatele, kteří hledají výkonná kamna s Ekodesignem a chtějí spojit praktičnost s výrazným designem.
- Pro ty, kdo oceňují jednoduchou obsluhu, robustní zpracování a snadnou údržbu.
Technické parametry – shrnutí v kostce
Nominální výkon 11 kW a účinnost 76,87 % umožní vytopit zhruba 150–220 m³ podle zateplení a dispozice objektu. Spotřeba paliva kolem 3,15 kg dřeva/hod je při správném topení vyvážena vysokým výkonem a rychlou reakcí na změny v přikládání. Šířka kamen 620 mm, hloubka 570 mm a výška 760 mm je předurčují k instalaci do větších místností či mezi dvě zóny obytného prostoru.
| Typ | ocelová krbová kamna na dřevo a dřevěné brikety, oboustranně prosklená |
| Nominální výkon do prostoru | 11 kW |
| Energetická účinnost | 76,87 % |
| Palivo | kusové dřevo, dřevěné brikety |
| Spotřeba paliva (dřevo) | cca 3,15 kg/hod |
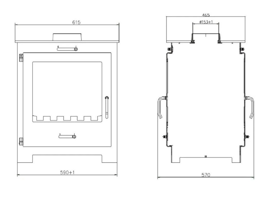
| Rozměry kamen (Š × H × V) | 620 × 570 × 760 mm |
| Rozměry topeniště (Š × H × V) | 528 × 338 × 445 mm |
| Rozměry přikládacího otvoru (Š × V) | 420 × 360 mm |
| Hmotnost | 122 kg |
| Průměr kouřovodu | 150 mm (horní vývod) |
| Teplovodní výměník | ne |
| Energetická třída | A, splňuje Ekodesign |
Doporučené palivo a provoz
- Palivo: suché tvrdé dřevo (buk, dub, jasan, habr) nebo kvalitní dřevěné brikety.
- Vlhkost dřeva: ideálně do 20 %; vlhké dřevo snižuje výkon, zvyšuje spotřebu a zanáší sklo i kouřovod.
- Provoz: kamna provozujte s viditelným plamenem, ne v dlouhodobém silně „přiškrceném“ režimu – zlepší se účinnost i čistota skla.
- Bezpečnost: dodržujte předepsané odstupové vzdálenosti od hořlavých materiálů a použijte nehořlavou podložku pod kamna.
- Údržba: pravidelně vybírejte popel, čistěte spalovací komoru a nechte komín minimálně 1× ročně zkontrolovat kominíkem.
Nejčastější dotazy k oboustranným krbovým kamnům VICTORIA
Doprava a balení krbových kamen VICTORIA
Kamna jsou dodávána na paletě tak, aby byla během přepravy co nejlépe chráněna. Výrobek je pevně uchycen, obalen kartonem, ochrannými rohy a fólií proti poškození. Doručení probíhá obvykle nákladním vozidlem se sklopnou plošinou, takže řidič může paletu bezpečně složit na vámi zvoleném místě (standardně k prvním uzamykatelným dveřím).
Doporučujeme zajistit si pomoc další osoby pro přemístění kamen z palety na finální místo instalace – hmotnost kolem 122 kg už vyžaduje více rukou a vhodné pomůcky (rudlík apod.).
O výrobci VICTORIA
Značka VICTORIA se specializuje na krbová kamna a sporáky na tuhá paliva s důrazem na praktické konstrukce, dobrý poměr ceny a výkonu a splnění moderních ekologických požadavků. V nabídce najdete jednoduché ocelové modely, kamna s vyšším výkonem i designové varianty se speciálními prvky, jako je právě oboustranné prosklení.
Pokud hledáte robustní kamna pro každodenní topení, která nabídnou příjemnou atmosféru ohně, vysoký výkon a zároveň splní normy Ekodesign, představují krbová kamna VICTORIA velmi atraktivní volbu.

Doplňkové parametry
| Kategorie: | Krbová kamna |
|---|---|
| Značka: | Victoria |
| ? Celkový výkon (kW): | 10 - 15 kW |
| ? Vytápěcí schopnost: | 100 – 150 m², 150 – 200 m² |
| ? Kouřovod průměr: | 150 mm |
| Vývod kouřovodu: | Horní |
| Plášť kamen: | Ocelový plech |
Buďte první, kdo napíše příspěvek k této položce.
Buďte první, kdo napíše příspěvek k této položce.


.png?683dea29)


.png?683e8f16)
.png?683dfc95)